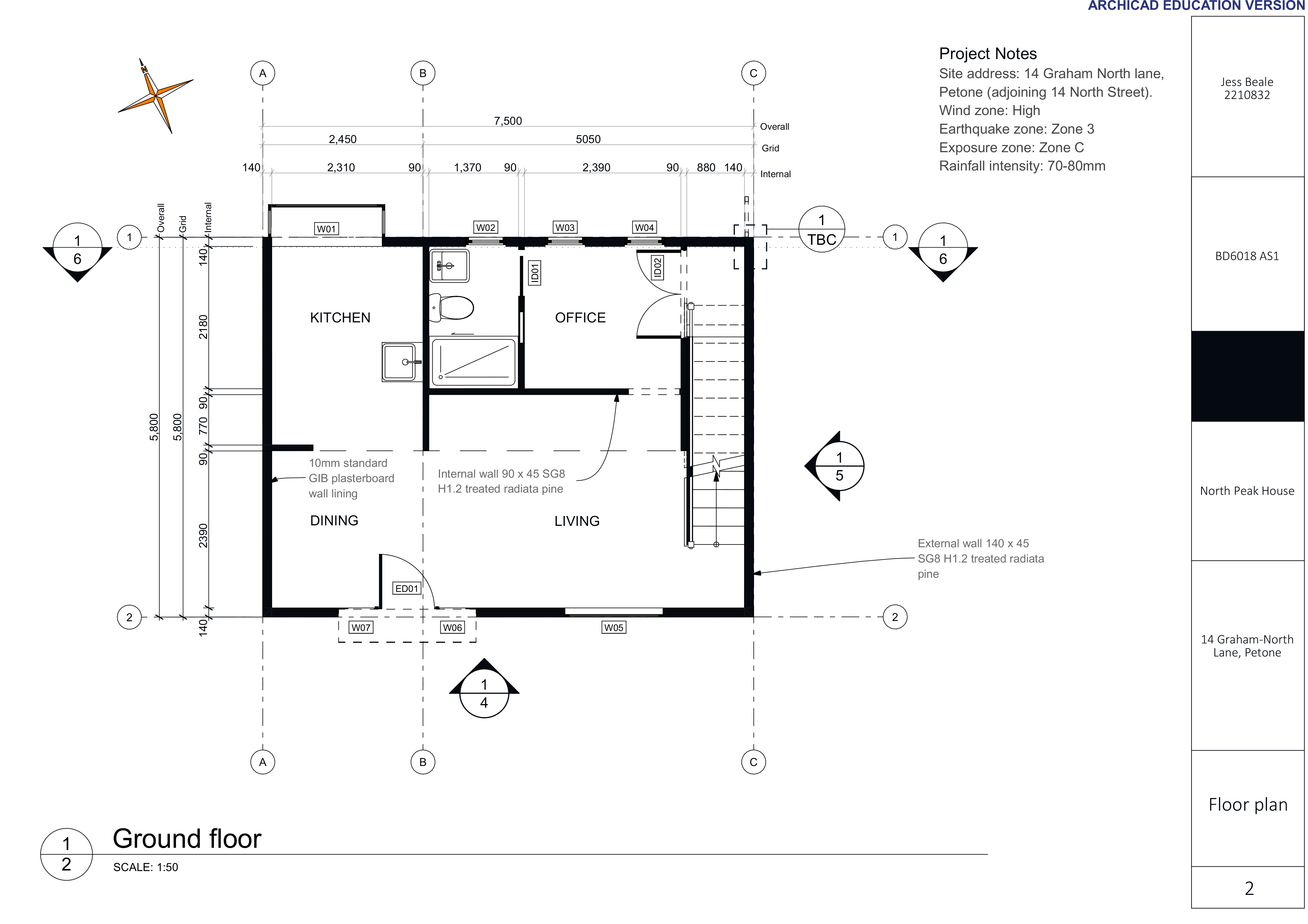
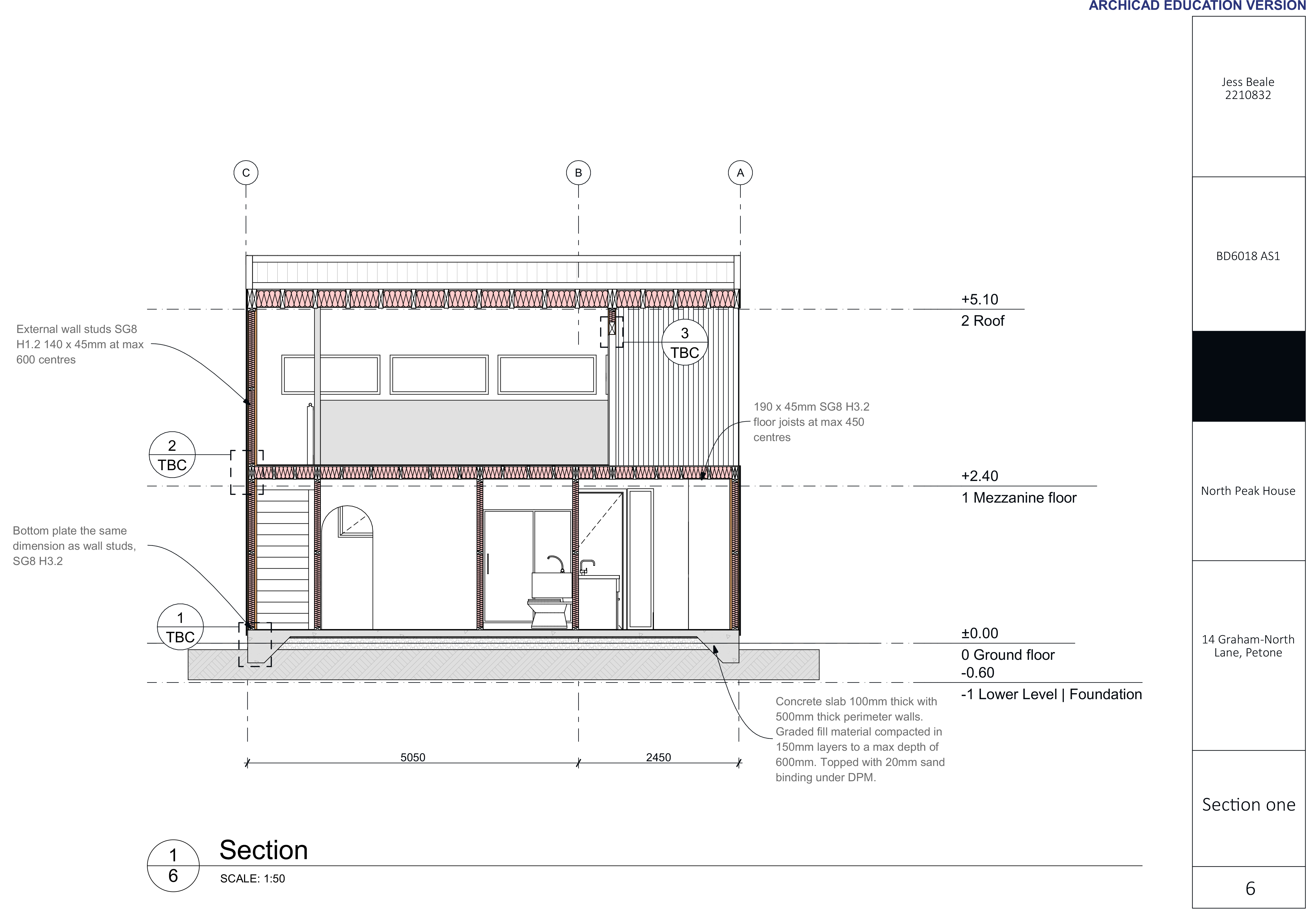
North Peak House - November 2021, Archicad
The North Peak House was a design prepared to the following brief:
- A small house for 1 to 2 people
- A footprint to fit at the front of an existing property on North Street in Petone
- A design that is reusable and would fit in other settings.